
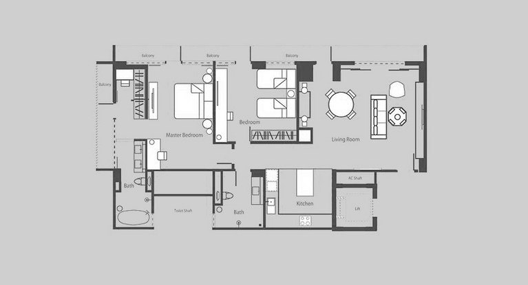
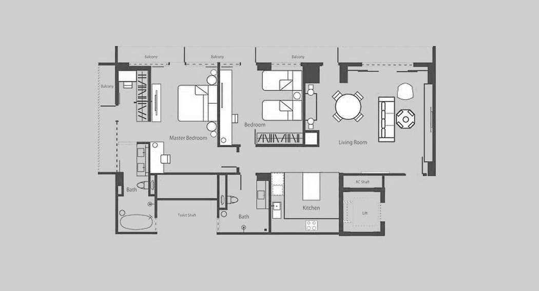
Two Bedroom Apartments
Ideal for guests with families in tow, these elegant two bedroom apartments ensure that everyone enjoys the space and privacy.
Two Bedroom
Floor area: 115-141 sqm (1,240-1,520 sq ft)
Key features and services of two bedroom apartments:
- Fully-furnished serviced residence with integrated living, dining and kitchen areas
- Complimentary Wi-Fi access
- Modern and well-equipped kitchen
- Under-counter freezer**
- Washer/dryer**
- In-room electronic safe
**Selected residences
CloseFloor Plan | Area: 115-141 sqm (1,240-1,520 sq ft)